“组网哪家强?超强Mesh还得是华硕!今日精选网友真实组网案例,涵盖多元户型与设备配置,生动呈现华硕AiMesh如何实现全屋无缝覆盖与稳定连接。从有线回程的高速部署,到老旧设备的焕新再用;从跨代混合组网的灵活兼容,到操作简便的智能管理,华硕方案以扩展性强、兼容性优为核心优势,轻松化解WiFi死角难题,全面提升家庭网络体验。”
用户情况:
户型:约200平米,四室两厅结构;签约宽带:中国电信1000M光纤(实测下行接近940Mbps,上行接近50Mbps)。
核心诉求:
1.全屋各个角落网络稳定流畅,无明显卡顿(重点场景:抖音短视频、4K在线影视追剧、主机/手游联机对战等);
2.游戏延迟尽可能低,对ping值敏感(FPS、MOBA、吃鸡类游戏为主);
3.漫游时网络切换无感,设备在客厅、主卧、次卧、书房来回走动不掉线、不需要手动切换WiFi。
4.整体预算控制在4000元左右。
户型情况:
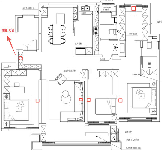
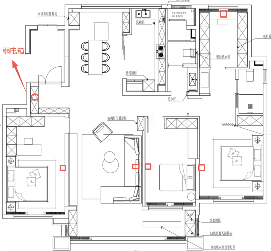
弱电箱位置位于玄关门卫鞋柜内,空间中等偏小。 每个房间基本都预留了网线到墙面超五/六类面板(红色方框标记位置),但目前仅确认客厅有两条网线回拉到弱电箱,其余房间暂无明确回程线。
弱电箱设备规划(极简方案):
弱电箱内仅需放置以下两类核心设备:
1.原厂电信光猫(桥接模式)
2.一台多口2.5G交换机(推荐8口或以上,支持2.5G/1G自适应)
通过这种极简布署,弱电箱发热量低、后期维护简单、扩展性仍保留。
路由器选型思路:
主路由器:选择华硕目前旗舰级WiFi7产品——RT-BE88U(2.5G+10G多网口、强大博通四核处理器、较强的无线功率与覆盖能力,是全屋有线回程MESH的核心担当)
子节点:选用高性价比WiFi7入门款——RT-BE3600 V2(两台)(性能够用、功耗低、支持最新WiFi7协议、有线回程下表现稳定,是目前最值得入手的MESH子节点之一)
组网物理连接步骤(推荐顺序):
1.将电信光猫设置为桥接模式,用网线将光猫LAN口连接到客厅墙面网口1;
2.客厅墙面网口1对应回程到弱电箱 → 接入主路由器RT-BE88U的任意LAN口(建议用10G/2.5G口);
3.主路由器RT-BE88U的另外的2.5G LAN口连接客厅墙面网口2;
4.客厅网口2回程到弱电箱 → 接入2.5G交换机任意端口;
5.弱电箱内2.5G交换机剩余端口分别拉线连接两台RT-BE3600 V2的有线LAN口(实现有线MESH回程)。
至此,硬件物理组网全部完成。
后续设置优化建议(按顺序操作):
1.完成所有路由器通电与有线连接后,先对主路由RT-BE88U进行初始化设置(建议用有线电脑连接);
2.固件升级到最新官方版本,确保稳定性与WiFi7性能最佳;
3.手动固定2.4G与5G信道(避开邻居干扰严重信道),启用5G 160MHz,便于新手机/平板等能获得最大速率;
4.无线参数优化:适当调高发射功率、启用OFDMA/MU-MIMO;
5.关闭Smart Connect。
6.在系统设置中更换公共DNS(如119.29.29.29 / 223.5.5.5 / 114.114.114.114组合),有效改善DNS解析速度与解析污染问题;
7.全部设置完成后,进入主路由后台 →AiMesh管理 → 搜索并添加两台BE3600 V2,完成有线MESH组网绑定。
全部搞定后,全屋基本实现千兆覆盖、低延迟、有线级稳定漫游的网络体验。






